Royalty Power Centre, Charlottetown PE

The Royalty Power Centre is the Island’s premiere shopping and retail destination The Royalty Power Centre is easily accessible to traffic coming in all directions, making it an ideal spot to attract and retain a customer base The RPC-East side has various raw land lots for sale which are perfect [...]

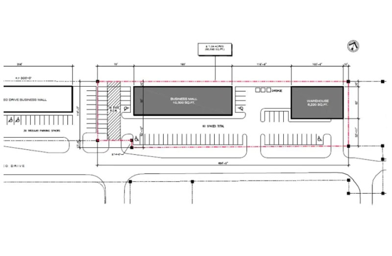
Cornwall Business Park – PEI

WB MacPhail Drive, Cornwall, PEI    Ideal for business owners looking to acquire commercial/light industrial property for their own operations Located off the Trans-Canada Highway in Cornwall, five minutes west of Charlottetown Tenants include: Shamrock Truss, V-tech Windows, Tube-Fab Ltd., Acadia Drywall, Kenmac Energy, Eastern Fencing Fully serviced lots, [...]

Reviving The Fish Factory

Residents of the Grand Tracadie area will get a renewed version of the past as construction on a well known fish processing facility resumed last week.

Grafton Place in Charlottetown

We're excited to offer commercial space at this great location In the heart of Downtown Charlottetown! Offering a wide variety of professional office and retail options at 199 Grafton Street in Charlottetown.  Grafton Place would make a great home to law firms, creative agencies, consulting firms, or tech startups to [...]

More affordable housing options for families in Stratford – Montague

A new federal grant will allow for the construction of housing units on Prince Edward Island, which will include affordable housing. Ahmed Hussen, minister of families, children and social development and minister responsible for Canada Mortgage and Housing Corporation, announced a financial commitment of over $20.36 million from the federal [...]

Go to Top