Skip to content
Cornwall Business Park – PEI
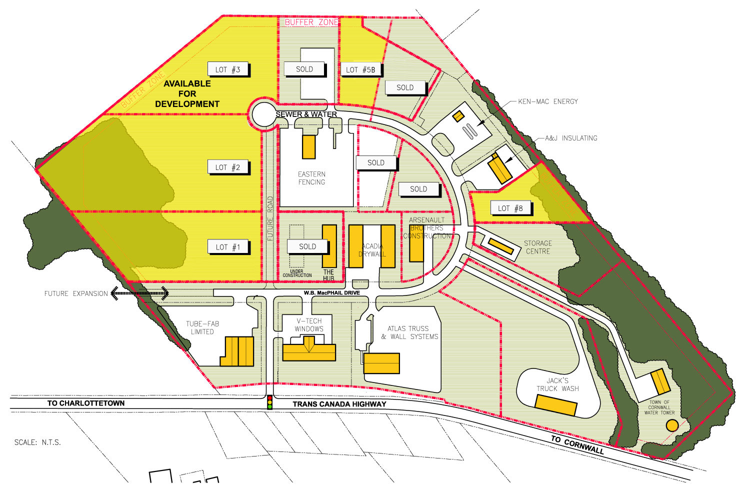
WB MacPhail Drive, Cornwall, PEI

- Ideal for business owners looking to acquire commercial/light industrial property for their own operations
- Located off the Trans-Canada Highway in Cornwall, five minutes west of Charlottetown
- Tenants include: Shamrock Truss, V-tech Windows, Tube-Fab Ltd., Acadia Drywall, Kenmac Energy, Eastern Fencing
- Fully serviced lots, development opportunities available in a variety of sizes
- Low lot prices and low property tax rates
- Municipal water and sewer
- This unique opportunity enjoys high visibility and a great signage opportunity with exposure to over 34,000 vehicles per day
Call Amber MacLauchlan today! 902-569-4000
admin2025-07-29T11:51:22-03:00